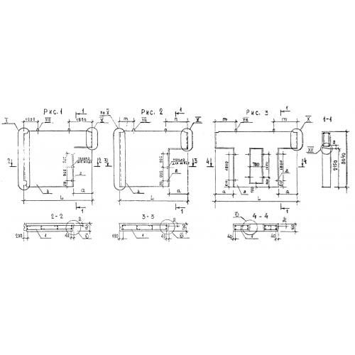
ПС 70.30.1.6

Чертеж изделия:
Характеристики изделия:
ПараметрЗначение
длина7000 мм
ширина160 мм
высота3040 мм
вес6000 кг
серия1.220.1-2

ПС 70.30.1.6 Панели внутренних стен по серии 1.220.1-2.