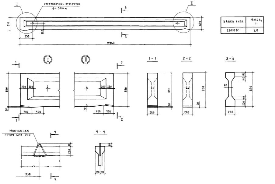
БСО 12 Балки для зданий со скатной кровлей

Чертеж изделия:
Характеристики изделия:
ПараметрЗначение
длина11960 мм
ширина280 мм
высота890 мм
масса5000 кг
нормативный документСерия 1.462.1-1/88

БСО 12   Балки стропильные для зданий со скатной кровлей Серия 1.462.1-1/88.