СБ-40

Чертеж изделия:
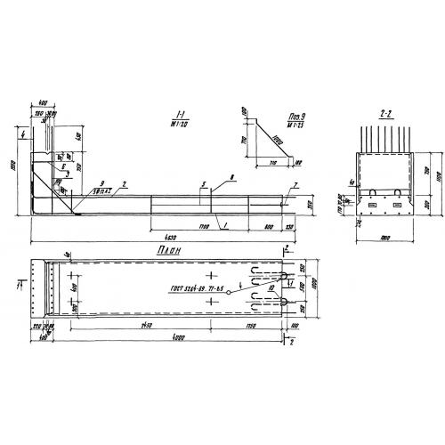
Характеристики изделия:
ПараметрЗначение
длина1000 мм
ширина1550 мм
высота4630 мм
масса4430 кг
нормативный документСерия 3.820.1-29

СБ-40 Стеновые блоки по Серии 3.820.1-29.