СБ-45

Чертеж изделия:
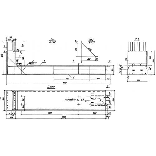
Характеристики изделия:
ПараметрЗначение
длина1000 мм
ширина1650 мм
высота5180 мм
масса6230 кг
нормативный документСерия 3.820.1-29

СБ-45 Стеновые блоки по Серии 3.820.1-29.