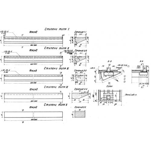
Ступень

Чертеж изделия:
Характеристики изделия:
ПараметрЗначение
длина3200 мм
ширина390 мм
высота210 мм
масса355 кг
нормативный документТП 501-166

Ступень -  Ступени железобетонные  по Типовому проекту ТП 501-166.